66 Dawson Manor Ct., Dawsonville 30534
It is our opinion that Design-Build offers the best approach.
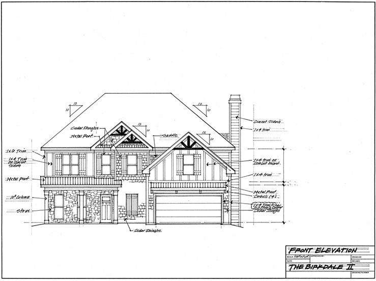
66 Dawson Manor Court is a 2,476 square foot custom designed and built 2-story home by Woodbridge Homebuilders LLC. The home is specially sited on Lot 27 to take advantage of setting the house on a high point on the lot, slightly above the street for maximum aesthetic effect. The home has a great many custom designed and selected features as listed below and is built to our highest standards. In addition, the home is on a quiet cul-de-sac in the best neighborhood in Dawson County.

Exterior
- Custom paint color scheme
- Cement siding with cedar shingle accents
- Stone accent wall under front porch
- Painted shutter accents on front elevation
- Starburst wood accents and corbel accents on front
- Craftsman style front door
- 25-30 year roof shingles with metal roof accents in front
- Large covered front porch with decorative columns
- Large rear yard covered porch with decorative columns
- Metal gutters
- Metal Garage doors with Craftsman hardware
- Custom landscape shrub and tree package
- Sodded front and side yards
Interior
- Custom wall color with beige coordinating trim
- 9 ' First floor ceilings
- Upgraded trim package
- Custom designed stair trim with metal accents
- 5" hand-scraped hardwood engineered floors on 1st Floor
- Craftsman style interior doors
- Single hung vinyl windows with energy efficient glass
- Rear full-lite patio door
- Designer matching cabinets in Kitchen and Baths
- Granite counters with customm tile backsplash in Kitchen
- Stainless steel appliance package
- Décor pendant lights over Kitchen islands
- Fireplace (most plans) with custom built mantel and tile surround
- Full size Laundry Rooms
- Custom selected lighting package, faucets and door hardware
- Designer tile floors and walls with glass tile accents in Master Bath
- Glass shower walls in Master bath
- Custom mirrors in Master Bath and secondary Baths
- Separate tub and large shower in Master bath
- Double vanity in Master Bath
- Custom selected tile floors and walls at secondary Baths
- Ceiling fan in Master Bedroom
- Large 2-car Garage with opener
- Security pre-wire
- 50 gallon water heater
- Separate 14-SEER HVAC units for first and second floors
- Programmable HVAC thermostats